Gewerbe Wohnen
Projekte: Gewerbe

Ausführungsplanung und Oberbauleitung für die "AOK" - Gesundheitskasse

Für die Gesundheitskasse AOK in Brühl übernahm ARCHITECTUS – bau + projektmanagement die Erstellung der Ausführungsplanung, sowie die anschließende Bauleitung der gesamten Umbaumaßnahme.
Der Fokus lag auf einer effizienten Planung und einer präzisen Umsetzung der baulichen Anforderungen sowie der Schnittstellenkoordination mit dem TGA Gewerken. Durch enge Abstimmung mit den Projektbeteiligten konnte die Maßnahme termingerecht und qualitätsgerecht realisiert werden.


Planung des Flagshipstores "Karadag"

Die erfolgreiche Marke „KARADAG“, bekannt aus der Supermarktbranche, beauftragte ARCHITECTUS – bau + projektmanagement mit der Entwicklung eines ganzheitlichen Innenraumkonzeptes für das neue Franchise „KARADAG Döner“.
Ziel war es, eine moderne, einladende Atmosphäre zu schaffen, die sowohl die Dynamik des Schnellgastronomie-Konzepts als auch die Wärme und Authentizität der Marke widerspiegelt.
Die Innenarchitektur lebt von hellen, freundlichen Farbtönen, natürlichen Materialien und einem harmonischen Zusammenspiel von Licht und Struktur. So entsteht ein Raum, der zugleich gemütlich, klar und stilvoll wirkt – ein Ort, an dem man gerne verweilt.
Als zentraler Blickfang prägt eine großflächige Wandinstallation aus hinterleuchteten Bergmotiven den Raum. Sie interpretiert den Namen Karadag – übersetzt „Dunkler Berg“ – auf moderne Weise und verbindet Markenidentität mit ästhetischer Raumwirkung.




Restaurant "Amade"

Aus einer ehemaligen Spielhalle entstand durch präzise architektonische Planung und Gestaltung eines der größten Restaurants Nordrhein-Westfalens.
Die Leistung umfasste die konzeptionelle Entwicklung, die räumliche und funktionale Neuordnung, den Entwurf einer prägnanten Fassadengestaltung sowie die umfassende Bauleitung.
Das Ergebnis: ein architektonisch klar strukturiertes Raumkonzept mit rund 350 Sitzplätzen und 60 Stellplätzen – funktional, atmosphärisch und identitätsstiftend.


Genehmigungsplanung, Ausführungsplanung und Bauleitung – "Rowlz & Bowlz", Köln-Dellbrück

ARCHITECTUS – bau + projektmanagement wurde mit der Planung, dem Genehmigungsverfahren sowie der Bauleitung vor Ort beauftragt, um die Umsetzung des Stores effizient und termingerecht zu begleiten.
In der vorherigen Nutzung als Schuhgeschäft wurde anschließend eine Nutzungsänderung zu einer Gastronomiefläche erfolgreich beantragt und umgesetzt. Durch präzise Planung und sorgfältige Bauleitung wird sichergestellt, dass das Designkonzept der Franchise-Kette einheitlich umgesetzt wird und gleichzeitig die Qualität und Funktionalität der Gastronomiefläche gewährleistet bleibt.



Planung und Bauleitung - "INCoffee"

Die Gastronomiefläche, mitten in Deutz die über Jahrzehnte als Kneipe genutzt wurde, sollte einer umfangreichen Sanierung unterzogen werden.
ARCHITECTUS – bau + projektmanagement wurde mit der Planung, der Materialuswahl, der Beleuchtung und Möblierung, sowie der Bauleitung vor Ort beauftragt, um die Neugestaltung effizient und stilsicher umzusetzen.
Durch gezielte Planung und kreative Gestaltung entstand eine moderne und einladende Atmosphäre, die den Charakter der neuen Gastronomie perfekt unterstreicht.


Planung und Bauleitung - "Rowlz&Bowlz", Hohenzollernring, Köln

Die Gastronomiefläche am Hohenzollernring in Köln wurde einer umfangreichen Sanierung unterzogen.
ARCHITECTUS – bau + projektmanagement übernahm die Planung, Bauleitung und Materialauswahl und ist als Rahmenpartner für die gesamte Umsetzung der Franchise-Kette verantwortlich.
Für den ersten Store wurde das Konzept umfassend entwickelt, sodass bei allen weiteren Standorten das Design und die hochwertige Umsetzung übernommen werden kann.
Auf diese Weise sorgt ARCHITECTUS – bau + projektmanagement für eine einheitliche Markenidentität, Effizienz in der Umsetzung und hohe gestalterische Qualität über alle Standorte hinweg.


Planung und Bauleitung - "Mamala-Bowls"

Der Bauherr beauftragte ARCHITECTUS – bau + projektmanagement, ein leerstehendes Geschäft in eine moderne Gastronomiefläche umzuwandeln.
Unser Auftrag umfasste sowohl die Planung und Materialauswahl als auch die bauleiterischen Tätigkeiten vor Ort, um eine reibungslose Umsetzung sicherzustellen.
Durch kreative Gestaltungsideen, hochwertige Materialien und stimmige Farbkombinationen entstand eine einzigartige, einladende Atmosphäre, die das Konzept der Gastronomie perfekt widerspiegelt.


Planung und Bauleitung einer Arztpraxis

Die in die Jahre gekommene Arztpraxis wurde umfassend modernisiert.
Durch eine sorgfältig abgestimmte Farb- und Lichtgestaltung sowie gezielte dekorative Akzente entstand eine helle, freundliche Atmosphäre, die das Wohlbefinden der Patientinnen und Patienten fördert und optimale Rahmenbedingungen für den Therapieprozess schafft.


Genehmigungsplanung, Ausführungsplanung und Bauleitung – "Rowlz & Bowlz", Köln-Kalk

Im Erdgeschoss eines Neubaus mit über 26 Wohneinheiten entstand ein neuer Store der Franchise-Kette.
ARCHITECTUS – bau + projektmanagement wurde mit der Planung, dem Genehmigungsverfahren sowie der Bauleitung vor Ort beauftragt, um die Umsetzung des Stores effizient und termingerecht zu realisieren.
Durch sorgfältige Planung und professionelle Bauleitung wird sichergestellt, dass das einheitliche Designkonzept der Franchise-Kette präzise umgesetzt wird und gleichzeitig die hohe Qualität und Funktionalität der Gastronomiefläche gewährleistet bleibt.



Sanierung und Bauleitung von "Sushi Haus"

Das Sushi-Haus im Herzen von Deutz, wurde einer Sanierung unterzogen.
ARCHITECTUS – bau + projektmanagement wurde beauftragt, den Gastraum neu zu gestalten und ein modernes, einladendes Ambiente zu schaffen, das sowohl funktional als auch ästhetisch überzeugt.
Besonderer Fokus des Projekts war die kurze Umsetzungszeit: Die Ausführungsarbeiten wurden innerhalb von nur acht Arbeitstagen erfolgreich abgeschlossen – zur vollen Zufriedenheit des Auftraggebers.


Planung und Bauleitung von "TopTop Donut"

Der Bauherr beauftragte ARCHITECTUS – bau + projektmanagement mit der Konzeptentwicklung sowie der anschließenden Umsetzung der Ausbauarbeiten für den Franchisgeber.
Ziel war es, ein durchdachtes, funktionales und einladendes Raumkonzept zu schaffen, das die Markenidentität optimal transportiert und gleichzeitig ein gemütliches, modernes Ambiente für die Gäste bietet.


Genehmigungsplanung – Nutzungsänderung eines Einfamilienhauses in eine Praxis

Nach der Antragstellung beim Bauamt und dem positiven Rückbescheid wurde die obere Etage eines Einfamilienhauses erfolgreich in eine moderne Arztpraxis umgewandelt.
ARCHITECTUS – bau + projektmanagement begleitete das Projekt von der Genehmigungsplanung bis zur Umsetzung, wobei besonderes Augenmerk auf funktionale Raumaufteilung, Nutzungsanforderungen und behördliche Vorgaben gelegt wurde.


Genehmigungsplanung - Kosmetikstudio

ARCHITECTUS – bau + projektmanagement wurde mit der Planung sowie dem Genehmigungsverfahren für die Umgestaltung und Einrichtung des Kosmetikstudios beauftragt.
Dabei lag der Fokus auf der optimierten Raumaufteilung, funktionalen Nutzung und der Einhaltung aller behördlichen Vorgaben, um eine reibungslose Genehmigung und erfolgreiche Umsetzung sicherzustellen.


Projekte: Wohnen

Revitalisierung eines Wohngebäudes in Köln

Das bestehende Wohngebäude mit insgesamt 32 Metern wird im Rahmen einer umfassenden energetischen und gestalterischen Sanierung neu gedacht.
Im Fokus stehen die Neustrukturierung und Optimierung der Grundrisse, eine moderne Farb- und Materialgestaltung sowie die ästhetische Aufwertung der Fassade.
Durch die ganzheitliche Planung und Baubegleitung entstand ein zukunftsfähiges Wohnkonzept, das Energieeffizienz, Wohnkomfort und architektonische Qualität harmonisch vereint.


Planung und Bauleitung – Sanierung einer Maisonettewohnung in Köln

ARCHITECTUS – bau + projektmanagement wurde von einem Bauherren mit der Planung und Bauleitung für die Sanierung einer Eigentumswohnung in Köln beauftragt.
Im Rahmen des Projekts wurden fachgerechte Sanierungsmaßnahmen, eine optimierte Raumaufteilung sowie eine hochwertige Ausstattung umgesetzt.
Durch die präzise Planung und die professionelle Bauleitung konnte das Projekt termingerecht, effizient und in hoher Qualität realisiert werden.



Gewährleistungsmanagement – Wohngebäude

ARCHITECTUS – bau + projektmanagement wurde von einem Immobilieninvestor mit der bautechnischen Begleitung nach Fertigstellung mehrerer Wohngebäude beauftragt.
Nach der Übernahme der Begleitung bestand die Aufgabe darin, vorhandene Mängel zu erfassen, fachgerecht zu beheben und die Koordination aller beteiligten Gewerke sicherzustellen.
Durch das Gewährleistungsmanagement wurde sichergestellt, dass die Wohngebäude den Qualitätsstandards entsprechen und die Zufriedenheit des Investors gesichert ist.


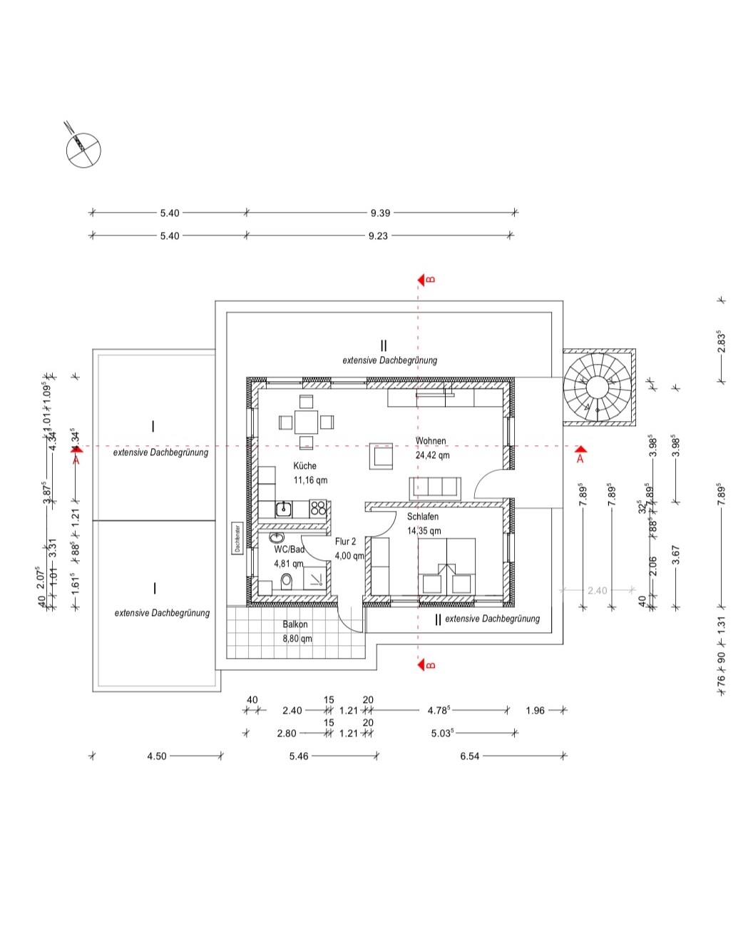
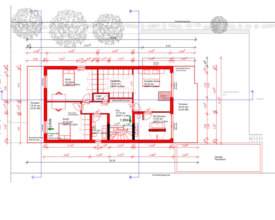
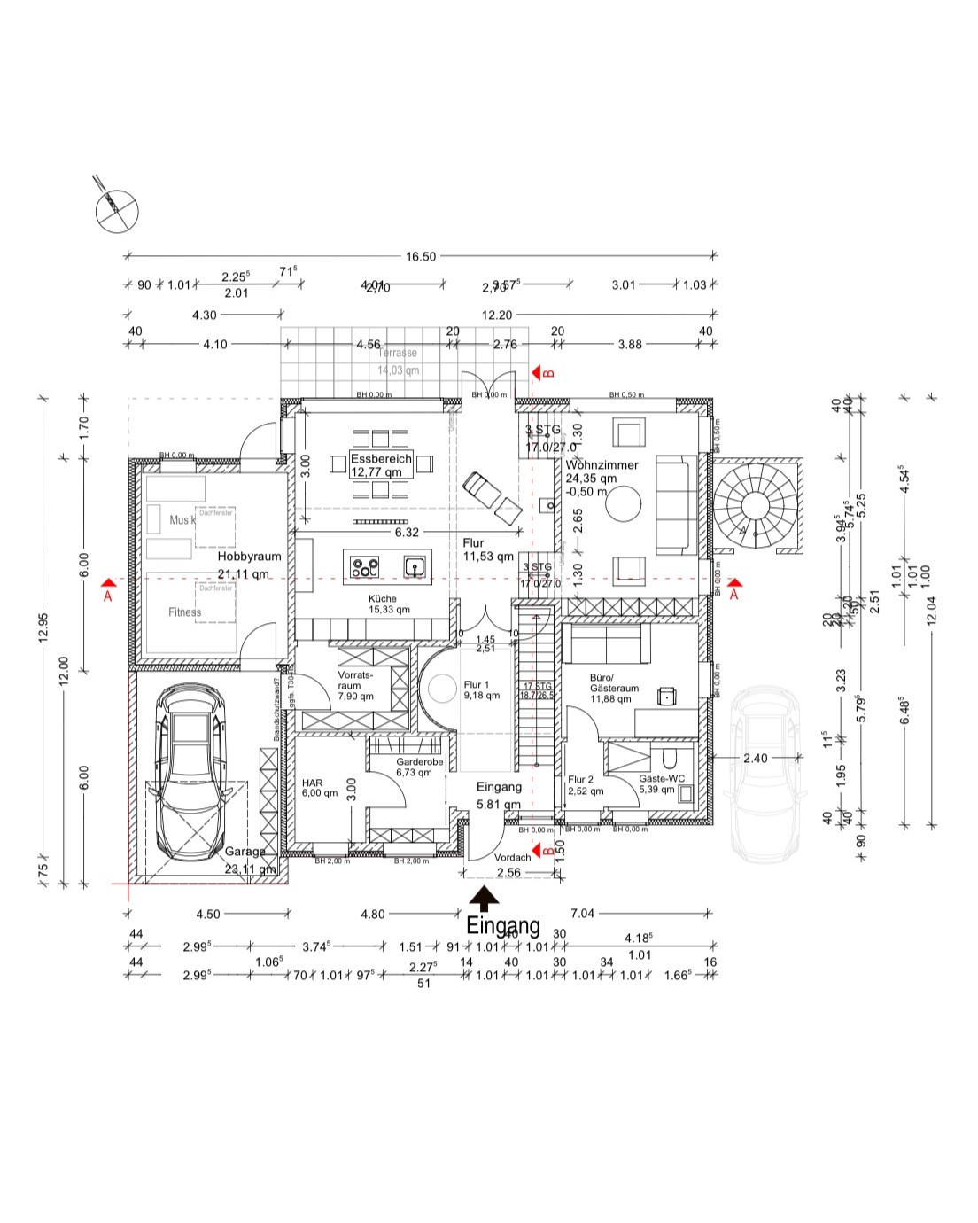
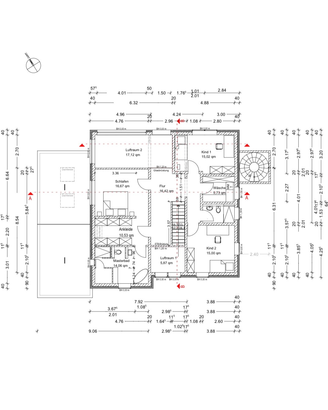
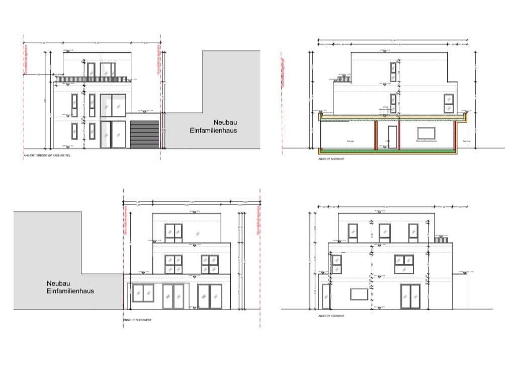
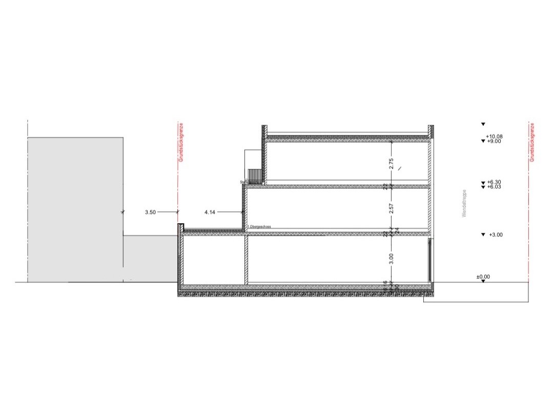
Neubau von zwei Einfamilienhäuser in Bornheim

Beauftragung der Leistungsphasen 1–8 für die Planung und Realisierung von zwei freistehenden Einfamilienhäusern.
Den Bauherren war eine klare, zeitlose und zugleich architektonisch anspruchsvolle Gestaltung von besonderer Bedeutung.
Bereits in der frühen Entwurfsphase wurden individuelle Wünsche und Bedürfnisse eng in die Planung integriert, sodass funktionale Raumlösungen und ästhetische Qualität in Einklang stehen.
Die Gebäude werden nach dem energetischen Standard GEG 55 errichtet und verbinden modernes Wohnen mit nachhaltiger Bauweise.



Entwurf und Bauantragsplanung – Dachaufstockung eines Einfamilienhauses

Nach der Antragstellung beim Bauamt und dem positiven Rückbescheid wurde die Dachaufstockung eines Einfamilienhauses erfolgreich umgesetzt.
ARCHITECTUS – bau + projektmanagement übernahm die Entwurfsplanung sowie die Bauantragsplanung und begleitete den Bauherrn während des gesamten Genehmigungsprozesses.
Durch die Aufstockung konnte die Wohnfläche deutlich erweitert werden, während die architektonische Gestaltung und Funktionalität des Hauses erhalten und modernisiert wurden.



Planung und Bauleitung – Sanierung einer Maisonettewohnung in Köln

ARCHITECTUS – bau + projektmanagement wurde von einem Bauherren mit der Planung und Bauleitung für die Sanierung einer Eigentumswohnung in Köln beauftragt.
Ziel des Projekts war es, die Wohnfläche optimal zu nutzen, die Raumaufteilung zu modernisieren und die Ausstattung hochwertig zu erneuern.
Durch die präzise Planung und professionelle Bauleitung konnte die Sanierung termingerecht, effizient und in hoher Qualität umgesetzt werden.


Haussanierung in Köln-Poll

Das Einfamilienhaus wurde einer umfassenden Sanierung unterzogen und in seiner räumlichen Struktur grundlegend neu geordnet.
Durch die Neugestaltung der Raumaufteilung, den Einbau neuer Fenster sowie die Neuinterpretation der Eingangssituation entstand eine klare, funktionale Organisation des Gebäudes.
Im Zuge der Maßnahme wurde das Dach vollständig erneuert und das Haus in zwei eigenständige Wohneinheiten gegliedert.
Die ARCHITECTUS – bau + projektmanagement wurde für die Planung sowie der anschließenden Bauleitung beauftragt und begleitete das Projekt von der Entwurfsphase bis zur Umsetzung.
Besonderer Wert wurde auf eine hohe architektonische und bauliche Qualität bei gleichzeitig wirtschaftlich effizienter Ausführung gelegt.


Entwurf und Bauantragsplanung – Dachaufstockung eines Einfamilienhauses

Nach der Antragstellung beim Bauamt und dem positiven Rückbescheid wurde die Dachaufstockung eines Einfamilienhauses erfolgreich umgesetzt.
ARCHITECTUS – bau + projektmanagement übernahm die Entwurfsplanung sowie die Bauantragsplanung und begleitete den Bauherrn während des gesamten Genehmigungsprozesses.
Durch die Aufstockung konnte die Wohnfläche deutlich erweitert werden, während die architektonische Gestaltung und Funktionalität des Hauses erhalten und modernisiert wurden.


Ausführungsplanung und Bauleitung – Sanierung eines Mehrfamilienhauses inkl. Erweiterungsbau

ARCHITECTUS – bau + projektmanagement wurde mit der Ausführungsplanung sowie der Bauleitung vor Ort beauftragt, um die Sanierung des Mehrfamilienhauses fachgerecht zu begleiten.
Durch die erfolgreiche Erweiterung konnte der Bauherr die Wohnfläche deutlich vergrößern, während gleichzeitig die funktionale Raumaufteilung und fachwertige Umsetzung gewährleistet wurde.



Ausführungsplanung und Bauleitung – Kernsanierung eines Einfamilienhauses

Das ca. 200 m² große Einfamilienhaus mit Dachstuhl und Keller wurde einer kompletten Kernsanierung unterzogen.
ARCHITECTUS – bau + projektmanagement übernahm die Ausführungsplanung sowie die Bauleitung vor Ort, um die Sanierung effizient, termingerecht und in hoher Qualität umzusetzen.
Besonderes Augenmerk lag auf der fachgerechten Instandsetzung aller Bauteile, der optimierten Raumnutzung sowie einer modernisierten Ausstattung, die den Wohnkomfort deutlich steigert.


Ausführungsplanung und Bauleitung – Neubau eines Einfamilienhauses

ARCHITECTUS – bau + projektmanagement wurde über einen Bauträger mit der Ausführungsplanung und der Bauleitung für den Neubau eines Einfamilienhauses beauftragt.
Durch die sorgfältige Planung und professionelle Bauleitung wurde sichergestellt, dass das Projekt termingerecht, effizient und in hoher Qualität umgesetzt wurde.
Besonderes Augenmerk lag auf der funktionalen Raumaufteilung, der Materialwahl und der harmonischen Umsetzung des Entwurfs.


Bauleitung – Fassaden- und Balkonsanierung

ARCHITECTUS – bau + projektmanagement wurde von einer Wohnungswirtschaft mit der Bauleitung für die umfassende Sanierung der Fassade beauftragt.
Im Rahmen des Projekts wurden nicht nur die gesamte Fassade vollständig erneuert, sondern auch alte Balkone inklusive neuer Geländer fachgerecht saniert.
Durch die präzise Bauleitung konnte die Maßnahme termingerecht, qualitativ hochwertig und effizient umgesetzt werden, wodurch die ästhetische Erscheinung und Funktionalität des Gebäudes deutlich verbessert wurde.


Bauleitung – Sanierung von Mietwohnungen in Köln

ARCHITECTUS – bau + projektmanagement wurde von einem Immobilieninvestor mit der Bauleitung für die Sanierung von Bestandswohnungen in Köln beauftragt.
Durch die fachgerechte Bauleitung konnte sichergestellt werden, dass die Sanierungsmaßnahmen termingerecht, qualitativ hochwertig und in Einklang mit den Anforderungen des Investors umgesetzt wurden.
Besonderer Fokus lag auf der optimierten Raumnutzung, moderner Ausstattung und der sorgfältigen Umsetzung der Bauarbeiten.


Bauantragstellung – Neubau eines Einfamilienhauses in Bedburg

ARCHITECTUS – bau + projektmanagement wurde mit dem Entwurf sowie der Bauantragstellung für den Neubau eines Einfamilienhauses beauftragt.
Ein besonderer Schwerpunkt dieses Projekts lag auf der ressourcen- und klimaschonenden Bauweise, um ein nachhaltiges und energieeffizientes Wohnen zu ermöglichen.
Durch die sorgfältige Planung und Umsetzung konnte ein modernes, funktionales und umweltfreundliches Wohnhaus realisiert werden, das sowohl ästhetisch als auch ökologisch überzeugt.


Genehmigungsplanung und Bauleitung – Wohnungsanbau in Köln-Frechen

Nach der Antragstellung beim Bauamt und dem positiven Rückbescheid wurde das Bestandsgebäude umfangreich saniert und erfolgreich mit dem hinteren Bestandsgebäude verbunden.
ARCHITECTUS – bau + projektmanagement übernahm sowohl die Genehmigungsplanung als auch die Bauleitung vor Ort, um die Umsetzung effizient, termingerecht und qualitativ hochwertig zu realisieren.
Durch die Maßnahme entstand zusätzlicher Wohnraum, während gleichzeitig die Funktionalität und Gestalt des Gebäudebestands erhalten und modernisiert wurde.


Neuplanung eines Mehrparteienhauses

Der Bauherr wünschte eine energetische Sanierung des gesamten Gebäudes.
In diesem Zuge wurden die Heiz- und Elektrotechnik sowie die Außenfassade und alle vier Etagen umfassend saniert.
Dadurch konnten unter anderem die Außenfassade, die Kellerräume und die oberen Etagen energetisch und funktinal aufgewertet werden.